- Woonoppervlakte
- Circa 108 m²
- Perceeloppervlakte
- Circa 147 m²
- Bouwjaar
- Gebouwd in 1911
- Aantal kamers
- 4 kamers (3 slaapkamers)
Ruime sfeervolle woonkamer, mooie moderne keuken, handige voorraadkelder, 3 slaapkamers en nette badkamer.
De woning is gelegen in een sfeervolle straat met gezellige en sociale buurtbewoners. Jaarlijks kunt u (naar wens) meegenieten van een gezellige straat BBQ en eventueel andere leuke activiteiten. Ook voor kinderen is het hier prettig wonen en zijn er veel jonge gezinnen. Aan het eind van de straat is een leuke speeltuin, het centrum van Boskoop is op loopafstand en uitvalswegen N207 & N455 zijn in de nabije omgeving.
Kortom een top locatie!
Indeling:
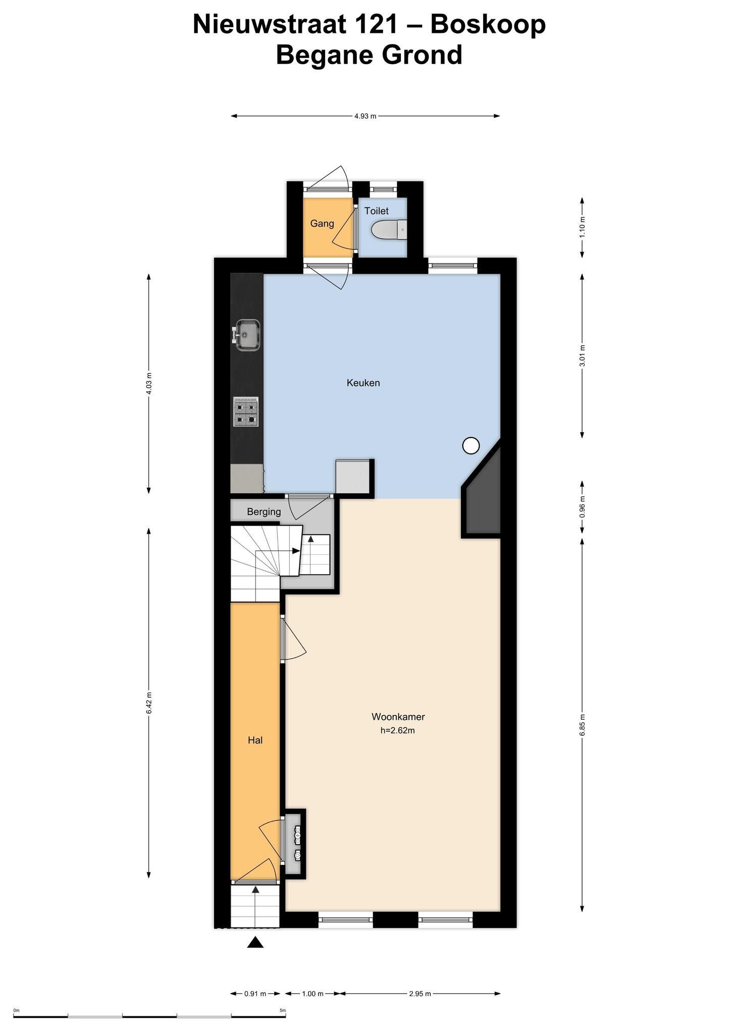
Begane grond:
Lange entreehal met meterkast, trapopgang naar de eerste verdieping en toegang tot de woonkamer.
Ruime sfeervolle woonkamer voorzien van airconditioning, nette wanden en nette laminaatvloer welke keurig is doorgelegd.
Ruime woonkeuken. Deze mooie moderne (Siematic) keuken is recht opgesteld, voorzien van gebroken witte kastdeuren /lades gecombineerd met een mooi kunststof betonlook aanrechtblad. U kunt hier het volgende aan inbouwapparatuur vinden: 4- pits gaskookplaat, rvs- afzuigschouw, koel/ vriescombinatie, combimagnetron en vaatwasser. Ook is er in de keuken een close- in boiler aanwezig.
Naast de keuken is een kleine hal met toegang tot het toilet en achtertuin.
Heerlijk zonnige achtertuin gelegen op het oosten.
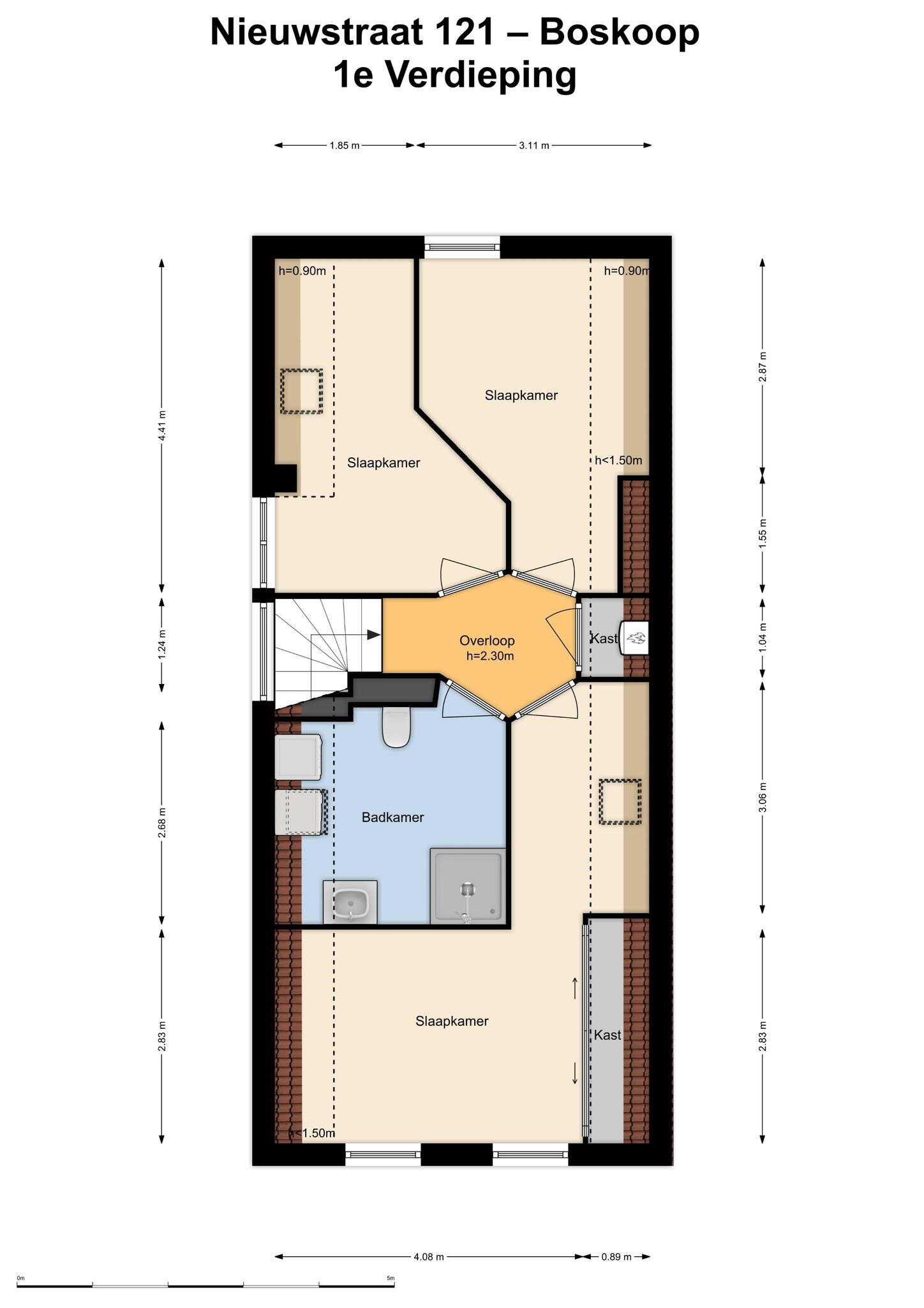
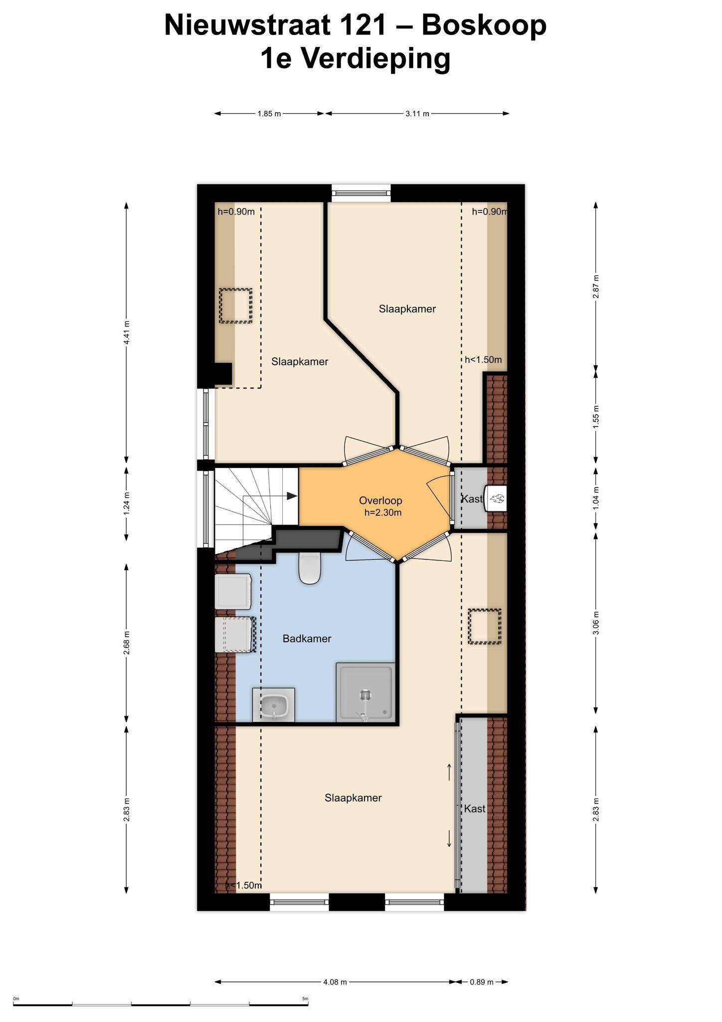
Eerste verdieping:
Overloop met cv- kast, toegang tot 3 slaapkamers en badkamer. Een nette etage welke volledig is voorzien van laminaat.
Nette badkamer met lichte wandtegels gecombineerd met donker bruin. Hier is een douchecabine, wastafel met meubel, toilet en wasmachine/ drogeraansluiting.
Bijzonderheden:
• Centraal gelegen nabij het centrum van Boskoop en uitvalswegen (achterzijde aan de N207);
• Sfeervolle straat met sociale buurtbewoners en kindvriendelijke woonomgeving;
• Ruime woonkeuken met mooie moderne keuken opstelling;
• 3 slaapkamers en nette badkamer;
• Airco!
Overdracht
- Koopsom
- € 335.000 k.k.
- Status
- Verkocht
- Aanvaarding
- In overleg
Bouw
- Object type
- Eengezinswoning, tussenwoning
- Soort bouw
- Bestaande bouw
- Bouwjaar
- 1911
- Soort dak
- Zadeldak
Oppervlakte en inhoud
- Woonoppervlakte
- 108 m²
- Perceeloppervlakte
- 147 m²
- Inhoud
- 384 m³
- Overige inpandige ruimte
- 13 m²
- Externe bergruimte
- 5 m²
- Gebouwgeb. buitenruimte
- 1 m²
Indeling
- Aantal kamers
- 4 kamers (3 slaapkamers)
- Aantal badkamers
- 1 badkamer
- Badkamervoorzieningen
- Toilet, douche, wastafel
- Aantal woonlagen
- 3 woonlagen
Energie
- Energielabel
- D
- Energielabel registratie
- 10-06-2025
- Verwarming
- Cv-ketel
- Warm water
- Cv-ketel
Buitenruimte
- Ligging
- In woonwijk
- Tuin
- Achtertuin
- Afmetingen achtertuin
- 49 m² (7.5 meter diep en 6.5 meter breed)
- ligging tuin
- Gelegen op het oosten
Garage
- Soort garage
- Geen garage
Parkeergelegenheid
- Soort parkeergelegenheid
- Openbaar parkeren
Energieverbruik in Boskoop
Energielabel deze woning
Energielabel D
Publicatie energielabel: 10-06-2025
Stroomverbruik per jaar
(Gemiddelde tussenwoning in Boskoop)
Gasverbruik per jaar
(Gemiddelde tussenwoning in Boskoop)
* Cijfers zijn afkomstig van het CBS en bedoeld als indicatie en kunnen verschillen voor deze woning
Indicatie hypotheeklasten
Eigen inleg:
Spaargeld / overwaarde
Rente:
Laagste 10-jaars rente
Laagste 10-jaars rente
2,76% - Centraal Beheer Groen... - NHG
2,98% - Centraal Beheer Groen... - 80%
Laagste 20-jaars rente
3,19% - Centraal Beheer Groen... - NHG
3,31% - Centraal Beheer Groen... - 80%
Laagste 30-jaars rente
3,34% - Centraal Beheer Groen... - NHG
3,47% - Centraal Beheer Groen... - 80%
Hypotheek:
Bruto maandlasten: € 0 p/m
Netto maandlasten: € 0 p/m
Hoe berekenen we dit?
Het rentepercentage is gebaseerd op de laagste 10-jaars vaste rente voor één hypotheekdeel. De vermelde rente (2.76% met NHG) is gecontroleerd op 05-08-2025. Deze berekening is gebaseerd op een annuïteitenhypotheek die volledig wordt afgelost, waarbij de maandlasten gedurende de gehele looptijd gelijk blijven. De werkelijke rente en netto maandlasten kunnen variëren, afhankelijk van uw persoonlijke situatie en de hypotheekverstrekker. Raadpleeg een financieel adviseur voor een nauwkeurige berekening en advies. Aan deze berekening kunnen geen rechten worden ontleend; het dient enkel als indicatie.
Documentatie
Kadastrale kaart
Leefomgeving
WOZ waarderapport
BAG uittreksel
Brochure
Energielabel
Lijst-van-zaken
Vragenlijst
Plattegronden PDF
Bekijk onze website
Bezichtiging
Bod uitbrengen
Waardebepaling
Zoekopdracht
Alles downloaden
Zonnegrenzen bekijken
Op de kaart
Inwoners in Boskoop
Cijfers voor postcodegebied 2771
- Totaal aantal inwoners
- 16130 inwoners
- Mannen
- 50%
- Vrouwen
- 50%
Inwoners in Boskoop
Cijfers voor postcodegebied 2771
- tot 15 jaar
- 16%
- 15 tot 25 jaar
- 13%
- 25 tot 35 jaar
- 24%
- 45 tot 65 jaar
- 28%
- 65 en ouder
- 20%
Huishoudens in Boskoop
Cijfers voor postcodegebied 2771
- Eenpersoons zonder kinderen
- 33%
- Meerpersoons zonder kinderen
- 32%
- Huishoudens zonder kinderen
- 65%
Huishoudens in Boskoop
Cijfers voor postcodegebied 2771
- Huishoudens met één kind
- 6%
- Huishoudens met meerdere kinderen
- 29%
- Huishoudens met kinderen
- 35%
Woningen in Boskoop
Cijfers voor postcodegebied 2771
- Woningen voor 1945
- 19%
- Woningen tussen 1945 en 1965
- 13%
- Woningen tussen 1965 en 1975
- 20%
- Woningen tussen 1975 en 1985
- 19%
- Woningen tussen 1985 en 1995
- 10%
Woningen in Boskoop
Cijfers voor postcodegebied 2771
- Woningen tussen 1995 en 2005
- 9%
- Woningen tussen 2005 en 2015
- 6%
- Woningen na 2015
- 5%
- Huurwoningen
- 40%
- Koopwoningen
- 60%
Overige in Boskoop
Cijfers voor postcodegebied 2771
- Gemiddelde WOZ waarde
- € 263.000,-
- Personen onder de 65 met uitkering
- 5%
Overige in Boskoop
Cijfers voor postcodegebied 2771
- Adressen per km²
- 889
- Stedelijkheid (schaal 1 op 5)
- 40%
Korte feiten over Boskoop
Boskoop (uitspraakⓘ) is een plaats in Zuid-Holland, die gelegen is aan (gekanaliseerde) rivier de Gouwe tussen Alphen aan den Rijn en Waddinxveen. Tot 1 januari 2014 was het een zelfstandige gemeente, per die datum is ze opgegaan in de fusiegemeente Alphen aan den Rijn. Op 1 januari 2023 had Boskoop een inwoneraantal van 16.670.
Indien u vragen heeft of u wilt een bezichtiging inplannen, dan kunt u gebruik maken van het formulier hiernaast. Er zal daarna op korte termijn contact met u worden opgenomen.
Euromarkt 3
2408 BA, Alphen aan den Rijn
0172 - 234 406 info@houtmandevogel.nl www.houtmandevogel.nlContact opnemen
Over Houtman & de Vogel
Bent u van plan om uw woning te verkopen? Zoek niet verder! Bij Houtman & de Vogel profiteert u van ervaren makelaars met uitgebreide kennis van de lokale woningmarkt. Ons doel is om de best mogelijke verkoopprijs en voorwaarden voor onze klanten te realiseren. Benieuwd hoe we dat doen? Maak een afspraak en ontdek wat wij voor u kunnen betekenen.
Ons kantoor is gevestigd op de Euromarkt 3 in Alphen aan den Rijn. Het heeft een professionele uitstraling en is voorzien van opvallende tv-schermen in de etalage waar uw woning wordt gepresenteerd. U kunt ons eenvoudig bereiken en er is gratis parkeergelegenheid voor de deur!
Houtman & de Vogel staat bekend om zijn actieve en resultaatgerichte aanpak, gekenmerkt door een no-nonsense mentaliteit. Wij zijn 6 dagen per week en 16 uur per dag bereikbaar. U kunt bij ons terecht voor bezichtigingen of een (gratis) waardebepaling, niet alleen tijdens kantooruren, maar ook in de avonduren en op zaterdag.
Nieuwste reviews
-
Zuiderkeerkring 328
Volledig tevreden over de kwaliteit en dienstverlening van Houtman & De Vogel makelaardij.Deskundig en goed.
-
Madridsingel 60
Prima verkoopbegeleiding. Snelle en afdoende reactie op vragen. Heel redelijke prijs. Goed verkoopresultaat!
-
Madridsingel 12
Goede service en vriendelijke makelaars.Je wordt goed op de hoogte gehouden en bieden altijd hun diensten aan als het jouw even niet uitkomt...